HMC型脈沖單機除塵器是我公司消化吸收國內外同類產品經改進后設計而成的小型袋式除塵器。除塵器采用脈沖噴吹的清灰方式,具有清灰效果好、凈化效率高、處理風量大、濾袋壽命 長、維修工作量小、運行可靠的優點。廣泛應用于冶金、建材、機械、化工、礦山等各種工礦企業非纖維性工業粉塵的除塵凈化與物料回收。
本系列除塵器共有六個規格,每種規格又可分為標準帶灰斗A型和敞開法蘭(無灰斗)B型 二 種。其結構主要由過濾室、濾袋、凈化室、灰斗、翻板閥、脈沖噴吹清灰裝置、電控柜等組 成,箱體全部采用焊接結構。檢修門用泡沫膠條密封,保證除塵器密不漏風。
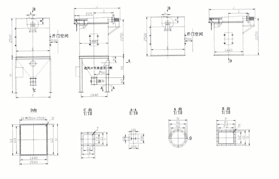
該產品有六種規格,過濾面積從24—84m2,處理風量從1500m3/h-9000m3/h,按用戶實際需 要,也可專門設計。
構造結構特點
除塵器本體由殼體、濾袋總成、噴吹清灰裝置、排灰裝置四個部分組成。
殼體部分由上箱體、中箱體、灰斗、進出風口組成。
濾袋總成由濾袋、濾袋框架等組成。
噴吹清灰裝置由氣包、噴吹管、脈沖閥、電磁控制閥、電控儀等組成。
排灰裝置由電機、減速器、螺旋輸送機、星形卸料閥組成。
脈沖閥I型采用直角脈沖閥,II型采用直通脈沖閥,減少了脈沖閥自身的阻力,是一種較理 想的脈沖噴吹形式。
工作原理
HMC型除塵器的進風口設在灰斗上,當含塵氣體從進風口進入灰斗后首先碰上進風管端部的擋板,由于慣性作用,使氣體中粗顆粒粉塵直接進入灰斗,起到預收塵的作用。進入灰斗的氣 流隨后折而向上通過內部裝有金屬骨架的濾袋,粉塵被收集在濾袋的外表面,凈化后的氣體進 入濾袋室上部的清潔室,匯集到出風管排出。室內收塵袋分為若干排,按照給定的時間間隔對 每排收塵袋進行清灰。當脈沖閥開啟時,即向濾袋內噴入高壓空氣,以清除濾袋表面上的粉塵。各排濾袋的脈沖噴吹寬度和清灰周期,由專用的清灰程序控制器自動連續控制。含塵氣體由灰斗(或下部敞開式法蘭)進入過濾室,較粗顆粒直接落入灰斗或灰倉。

