電動轉彎溜子主要用于袋式包裝的物料在輸送過程中從一條 輸送帶向下層與之垂直相交的另一條輸送帶之間的轉彎輸送。 工作時搖臂打開,將行進中的袋裝物改變行進方向,使其向處 于下層的膠帶輸送。
技術要求
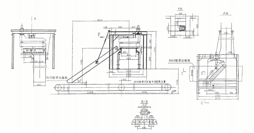
1、A向視圖中箭頭表示水泥包由B800膠帶運輸機經電動 轉彎溜子運至B650膠帶機運行方向。
2、由B800膠帶運輸機進電動轉彎溜子的水泥包,須順裝進入,不允許有橫包現象。
3、行程開關(序號22)在現場安裝。
4、連接架制作安裝現場配鉆,并拆下B800膠帶運輸機上相應托輥。
技術性能
1、輸送物料
袋裝水泥: 50Kg/包
2、擺線針輪減速機
(1)型號: BL15-9-1.1
(2)速比: 9
3)電動機型號: Y90S-4 功率1.1KW,轉速1450r/min
3、電動推桿
(1)型號DT300-600 (2)推力300kg
(3)速度:84mm/s (4)電動機型號:A06332
功率0.55KW 轉速2800r/min
電壓380v,電流1.38A
4、行程開關
(1)型號JL×K1—111
(2)電壓380V,電流5安培
安裝使用說明
電動轉彎溜子由鋼制機架、可轉動皮帶轉彎機構、電動推桿、滑動溜板和控制系統等組成。電 動轉彎溜子主要用于袋式包裝物料輸送過程從一條輸送帶向下層的與這垂直的加一條輸送帶的轉彎 輸送。適用于水泥、糧食、化工等行業的自動輸送線,能夠讓被輸送的袋裝物料自動轉線。

